Early this year, the NGO Bikubenfonden moved into Thoravej 29, its new headquarters in northern Copenhagen, designed by Pihlmann Architects. The foundation sees itself as an experimental agent targeted at ‘wicked problems’ in society – like youth homelessness – that Denmark’s otherwise enviable welfare model ‘just cannot get hold of’. The foundation is not intent on the construction of a new societal model, but the targeted repair and creative amendment of the structures that already exist. Their new building is an apt metaphor for this mission: a staid, effective, yet somewhat outmoded structure probed at, played with and reformulated to become more open, progressive and fizzing with life.
The project began in 2019 in the wake of an internal ‘pinpoint analysis’ of Bikubenfonden’s culture and practices. ‘We did not get as good a result as we had hoped,’ says Søren Kaare-Andersen – former CEO of the bank whose sale bestowed Bikubenfonden with its £130m endowment. One of the issues addressed by the review was the foundation’s headquarters, a ‘very, very nice building’ in central Copenhagen, where ‘we were more or less walking around in our own safe space’. With Dan Stubbergaard – founder of architecture firm Cobe – the brief for a new headquarters was drafted, to become a hub for collaboration among a collective of impact-oriented institutions and creatives. Crucially, the building was to be designed by a young architecture practice with new ideas, and formed from the structure of an existing building.

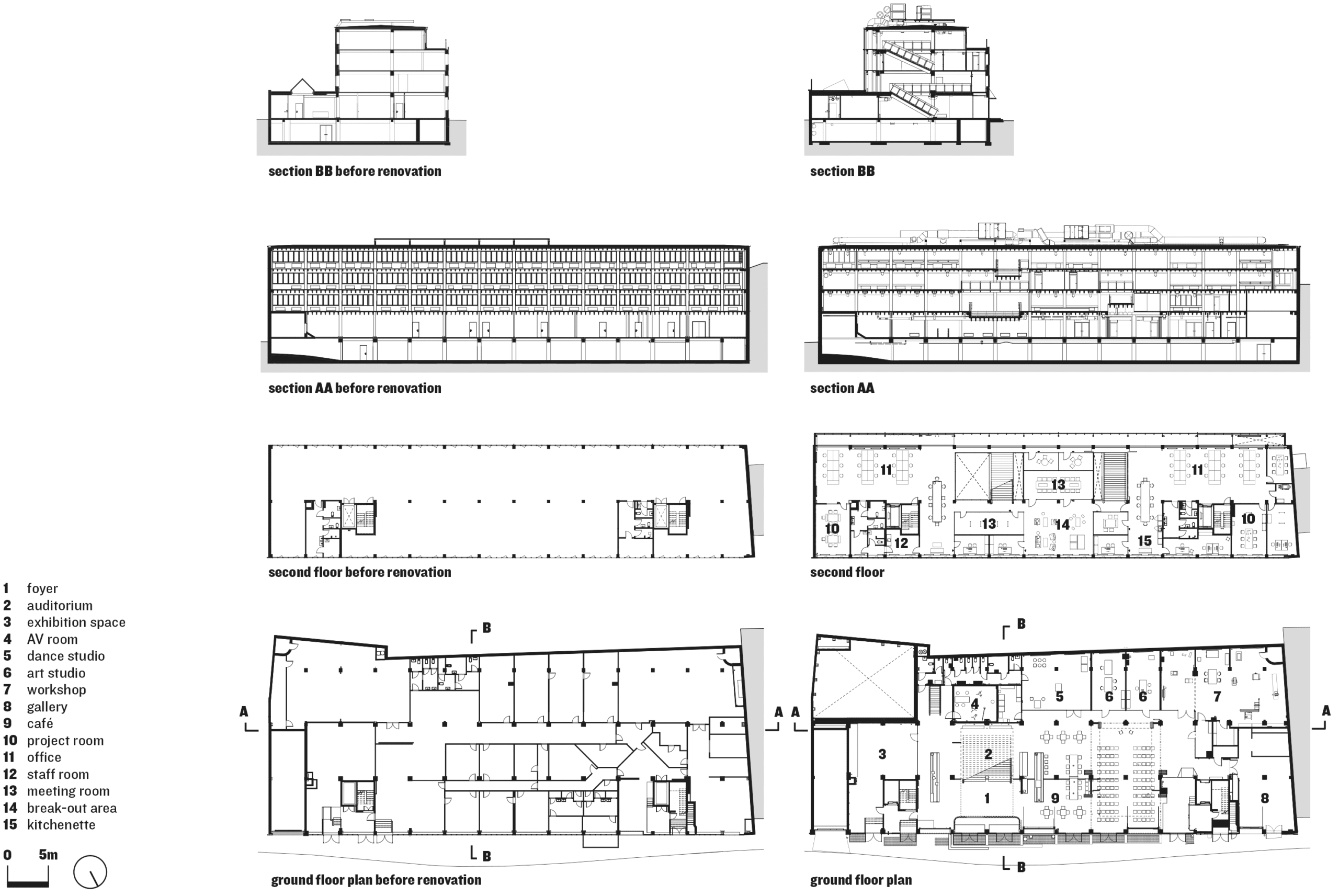
Three architectural teams were invited to compete for this brief, collaborating with an engineer and entrepreneur; Pihlmann’s proposal was viewed as ‘the most interesting and most fantastic … no doubt’. From here, Bikubenfonden led with a profound degree of trust and engagement. ‘It is not our idea to tell people all the way what to do and how to do it, because then we limit their free thinking,’ Kaare-Andersen says. The approach allowed Pihlmann Architects to follow a ‘radical pragmatism’ of reuse of what was previously a generic 1960s industrial building; 95 per cent of the existing building’s materials were reused in the project at a construction price no dearer than an equivalent new build. ‘If it works why not keep it?’, explains founder Søren Pihlmann.
Kaare-Andersen is adamant that others could ‘take this process and directly transfer it to other ways of reusing buildings’, but Thoravej 29 also demonstrates the rare ingenuity required of such a process – both architecturally and institutionally. Thoravej 29’s ‘off-the-shelf’ raw structure was still replete with idiosyncrasies and challenges to overcome to enable its full reuse; the architects’ deft navigation forms the essential dexterity of the new architecture. For Bikubenfonden, the project has been concomitant with a unique process of renovation in their own direction and identity, requiring some members of the foundation board to be convinced. ‘They looked at me as if I had been drinking,’ Kaare-Andersen says of the board’s first viewing of Thoravej 29.
Now complete, there is hope that the process is replicated. Pia Møller-Holst, Thoravej 29’s community director, says: ‘I am often asked whether this is different to moving into a new building. And I think it is very different … it is inspiration for new ways of thinking.’